about
Work
1830 Garage
Dupuy Farm
LaFleur-Hebert House
Built-In Residence
LeBois House
Leroy Addition
Darby-Hacket House
Corral-Basin Residence
Joie de Vivre
Midway Restaurant & Bar
Carl Tiny House
OurFarm at Sagamore Pond
Four Corners
Red Shoes Community Center
CADA Women's Shelter
General Gardner Rehabilitation
Hidden Hills renovation
Kellman-Deitz Renovation
Development Proposals all
Demas Adaptive ReUse proposal
Development Proposals
1402 Cameron St
Buchanan St proposal
Community Land Trust (CLT)
Evangeline Hotel reDevelopment proposal
110 West Cypress
Washington St proposals
Freetown Proposal
1019 Jefferson St
Martha St Row
Four Corners
Beaugh Housing
Chag St
SDLab
LA Housing Lab
Contact
about
Work
1830 Garage
Dupuy Farm
LaFleur-Hebert House
Built-In Residence
LeBois House
Leroy Addition
Darby-Hacket House
Corral-Basin Residence
Joie de Vivre
Midway Restaurant & Bar
Carl Tiny House
OurFarm at Sagamore Pond
Four Corners
Red Shoes Community Center
CADA Women's Shelter
General Gardner Rehabilitation
Hidden Hills renovation
Kellman-Deitz Renovation
Development Proposals all
Demas Adaptive ReUse proposal
Development Proposals
1402 Cameron St
Buchanan St proposal
Community Land Trust (CLT)
Evangeline Hotel reDevelopment proposal
110 West Cypress
Washington St proposals
Freetown Proposal
1019 Jefferson St
Martha St Row
Four Corners
Beaugh Housing
Chag St
SDLab
LA Housing Lab
Contact
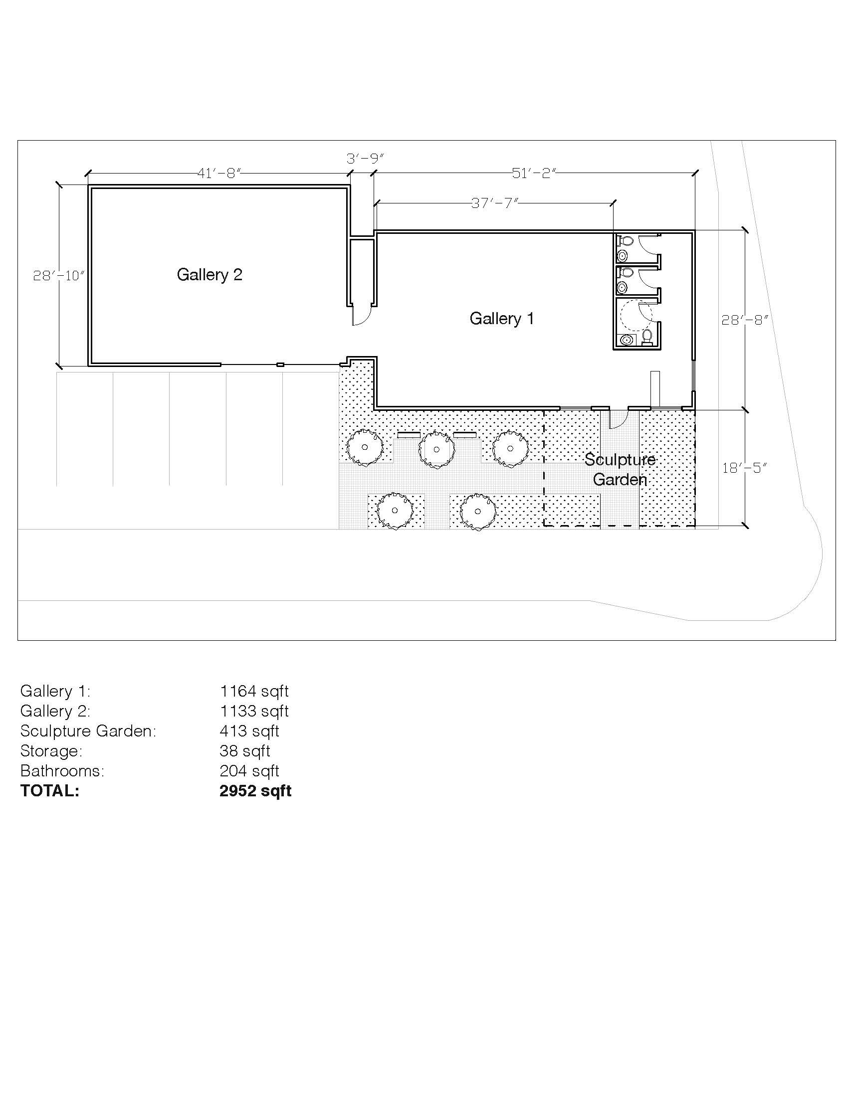
1019 Jefferson St
Schematic design proposal for adaptive reuse of historic service station into a museum of the city.
You may also like
2022
Buchanan St proposal
2022
Evangeline Hotel reDevelopment proposal
2022
Chag St
2022
Community Land Trust (CLT)
2022
110 West Cypress
2018
Beaugh Housing
2022
Four Corners
2022
1402 Cameron St
2018
Martha St Row
2018
Freetown Proposal
↑
Back to Top