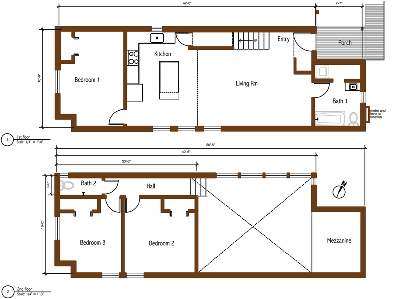
Lafayette, LA 2010 • 3 bedroom/2 bath SF • LEED Platinum certified • Passive House certified • AIA SW Louisiana Award of Merit & INDesign Gold Award