about
Work
1830 Garage
Dupuy Farm
LaFleur-Hebert House
Built-In Residence
LeBois House
Leroy Addition
Darby-Hacket House
Corral-Basin Residence
Joie de Vivre
Midway Restaurant & Bar
Carl Tiny House
OurFarm at Sagamore Pond
Four Corners
Red Shoes Community Center
CADA Women's Shelter
General Gardner Rehabilitation
Hidden Hills renovation
Kellman-Deitz Renovation
Development Proposals all
Demas Adaptive ReUse proposal
Development Proposals
1402 Cameron St
Buchanan St proposal
Community Land Trust (CLT)
Evangeline Hotel reDevelopment proposal
110 West Cypress
Washington St proposals
Freetown Proposal
1019 Jefferson St
Martha St Row
Four Corners
Beaugh Housing
Chag St
SDLab
LA Housing Lab
Contact
about
Work
1830 Garage
Dupuy Farm
LaFleur-Hebert House
Built-In Residence
LeBois House
Leroy Addition
Darby-Hacket House
Corral-Basin Residence
Joie de Vivre
Midway Restaurant & Bar
Carl Tiny House
OurFarm at Sagamore Pond
Four Corners
Red Shoes Community Center
CADA Women's Shelter
General Gardner Rehabilitation
Hidden Hills renovation
Kellman-Deitz Renovation
Development Proposals all
Demas Adaptive ReUse proposal
Development Proposals
1402 Cameron St
Buchanan St proposal
Community Land Trust (CLT)
Evangeline Hotel reDevelopment proposal
110 West Cypress
Washington St proposals
Freetown Proposal
1019 Jefferson St
Martha St Row
Four Corners
Beaugh Housing
Chag St
SDLab
LA Housing Lab
Contact
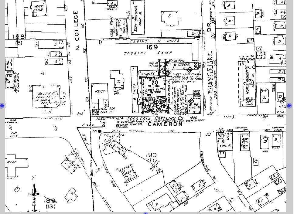
Four Corners
Lafayette, LA 2012 Master Plan of the historic Four Corners areas as a gateway into Lafayette
You may also like
2022
Development Proposals all
2003
Built-In Residence
2008
Corral-Basin Residence
2017
General Gardner Rehabilitation
2017
Darby-Hacket House
2020
Leroy Addition
2014
Demas Adaptive ReUse proposal
2017
CADA Women's Shelter
2010
Kellman-Deitz Renovation
2002
Red Shoes Community Center
↑
Back to Top